Architektur
Müller Mantel Architekten
Zürich
Projektwettbewerb
offen, 2025
Die geschickte Platzierung des Neubaus ermöglicht klar zuzuordnende Freiräume und eine komplette Entflechtung von Fussgängern und motorisiertem Verkehr.
Einladende, grossformatige Betonplatten aus rezykliertem Material führen von der Thurgauerstrasse über eine gedeckte Passage zum Haupteingang und zu den Gewerberäumen. Vor dem Restaurant erweitert sich der Belag zu einem grosszügigen Aussenbereich unter dem schattigen Baumbestand. Ein kleiner Weg führt südlich auf ein höheres Niveau, wo sich ein kleiner kiesiger Platz mit Brunnen befindet, dieser ist schön eingebettet in Baum-, Strauch- und Staudenvegetation.
Von der Thurgauerstrasse führt ein weiterer Zugang zum separaten Eingang SAW. Hier finden sich auch 20 gedeckte Stellplätze für Velos und andere Kleingefährte.
Weitere Velostellplätze sind entlang der Grubenackerstrasse platziert. Von hier führt ein Eingang direkt ins erste Obergeschoss. Die Unterflurcontainer, die Grünmulde, sowie die unterirdische Trafostation werden ebenfalls von dieser Ebene aus bedient.
Nördlich befindet sich die Anlieferung, die Parkplätze, Pressmulde, etc. Grossflächige Stellmöglichkeiten für die Feuerwehr erlauben eine ideale Zugänglichkeit zum Gebäude im Notfall.
Üppige Baum-, Strauch und Staudenvegetation bilden einen angenehmen Filter zwischen den Strassenräumen und dem Gesundheitszentrum.
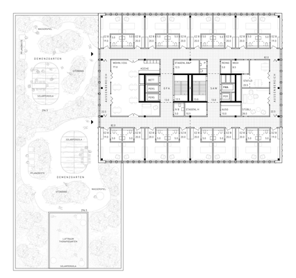
Auf dem ersten Geschoss befindet sich der Therapiegarten, ein Geschoss höher sind die beiden Demenzgärten angeordnet. Diese zeichnen sich durch eine grosszügige und abwechslungsreiche Gestaltung aus. So finden sich Pflanz- und Duftbeete, berankte Pergolen, Wasserspiele, haptische Elemente und barrierefreie Rundwege mit Handläufen. Die Bepflanzung ist abwechslungsreich und bietet allen Sinnen etwas, die Jahreszeiten sind jederzeit spür- und erlebbar.
Ganz oben auf dem Dach befindet sich ein Gemeinschaftsraum mit Aussenbereich und grandioser Aussicht.
parbat Landschaftsarchitektur GmbH
